
Содержание
1. Концепция исследования 2. Происхождение и ранние свидетельства (XVIII–XIX вв.) 3. Народная практика (XIX — начало XX века)ИСТОРИЯ ФИЗИЧЕСКОЙ ИГРЫ «ГОРОДКИ» 4. Институционализация (СССР) 5. Правила и техника 6. Снижение популярности и возрождения (1990-е — настоящее время) 7. Социальная роль 8. Выводы и рекомендации по сохранению традиции 9. Список текстовых источников (литература)
Концепция исследования
Физическая игра «городки» — редкий пример народной практики, прошедшей путь от дворового развлечения до институционализированного вида спорта, а затем частично ушедшей в культурную тень. Исследуя её, мы наблюдаем рождение и трансформацию традиции: как игра формирует сообщество, дисциплину тела и жеста, чувство пространства и ритуалы взаимодействия. Это исследование — попытка вернуть игре её голос, чтобы не только рассказать историю ударов по деревянным фигуркам, но и показать, как исчезающие/возрождающиеся физические игры влияют на культурную память.
Материал подбирался по трём критериям: историческая достоверность (архивные и научные источники, этнографические исследования); репрезентативность практики (описания правил, инвентаря, соревновательного формата, бытовые свидетельства); визуальная ценность (фотографии, схемы, архивные иллюстрации). Основу составляют первичные описания городской и сельской игровой культуры, советские методические издания, этнографические труды и современные материалы спортивных федераций.
Структура исследования выстроена хронологически с параллельным культурно-социальным анализом: Происхождение и ранние свидетельства (XIX век и ранее) Народный период Институционализация в СССР Уход игры с массовой сцены и современное возрождение Культурный смысл игры: тело, пространство, ритуал, сообщество Каждый блок включает визуальные материалы: старые фотографии, современные реконструкции.
Основанием служат фундаментальные работы о природе игры: Всеволодский-Гернгросс «Игры народов СССР» как этнографическое свидетельство; Выготский «Игра и её роль в психическом развитии ребёнка» для анализа когнитивной функции правил и социализации; Хёйзинга «Homo ludens» как философская рамка, объясняющая игру как культурное действие и автономный мир внутри общества. Дополнительно учитываются региональные архивы, музейные фонды, документы спортивных организаций и устные источники. Анализ ведётся на пересечении этнографии, культурологии и социальной психологии: игра рассматривается как текст, ритуал и практика тела.
Ключевой вопрос исследования: Как игра «городки» трансформировалась от народной дворовой практики к официальному виду спорта
Гипотеза исследования: Предполагается, что изменение статуса городков — от массовой уличной игры к редкой традиционной дисциплине — отражает более широкий культурный процесс: постепенное исчезновение физических коллективных игр в городской среде и их замена цифровыми и индивидуальными способами досуга. При этом сохранение городков в локальных сообществах и институциональных формах свидетельствует о глубокой связи между игрой, телесностью и культурной идентичностью; традиционные игры продолжают жить там, где остаётся ценность совместного действия и пространства для него.
Происхождение и ранние свидетельства (XVIII–XIX вв.)
Городки (рюхи, чушки, чухи, поросятки, черешки, летки) — старинная русская народная спортивная игра. (6)
Считается, что старинная русская игра в городки существует более 1000 лет, хотя точных сведений о происхождении игры летописи не сохранили. Учёные склоняются к версии, что игра родом из народных забав Руси, а позднее распространилась по всей империи. В неё играли ремесленники, солдаты, крестьяне, рабочие фабрик. Окончательно игра сформировалась на рубеже IX–X веков среди славянских и финно-угорских народов сельских районов. Первые документальные и изобразительные подтверждения популярности городков среди населения появились в начале XIХ века. Зарисовки, альбомы и описания русского быта, включающего спортивные игры и забавы, принадлежали в основном иностранным исследователям, путешествующим по России. В 1803-04 годах в Лондоне художники Джон Август Аткинсон и Джеймс Уокер (Atkinson J.-A., Walker J.) издают трехтомный альбом «Живописное представление манер, обычаев и развлечений русских», где наглядно показана серия раскрашенных гравюр. Некоторые гравюры представляют дворовые забавы, в том числе игру в городки (рюхи). Причем в конце забавы проигравший должен носить победителя на своей спине под усмешки зрителей.
(1)
Спустя год после лондонского издания, в 1805 г. в Лейпциге выходит в свет небольшой альбом под названием «Игры и увеселения русских из низших классов», где представлены раскрашенные гравюры, созданные по рисункам немецкого художника Х.-Г. Гейслера. Он жил в России с 1790 по 1798 гг. и весьма интересовался бытом русского народа. Среди гравюр находятся две, посвящённые игре в городки. «…Эта игра известна, строго говоря, только в России, поскольку требует значительной силы. Поэтому в неё играют только сильные и крепкие люди, волею судьбы битающие в этой суровой стране…» (художник Кристиан Готфрид Генрих Гейслер, 1805 г.).
(2)
(3)
Народная практика (XIX — начало XX века)
Распространившись по всем губерниям Российской империи, игра эта обрела в народе самые разные названия. В средней полосе России, в Омской и Тобольской губерниях ее называли «рюхами», «чухами» или «чушками», в Вятской губернии — «деревянными бабками», в Черниговской Губернии — «кеглями», в Херсонской губернии — «сраклями», а на Кубани «клетками». (5)
Сердцем городошной потехи в первую очередь были ярмарки. Особенно многочисленные и шумные состязания происходили в Нижнем, куда стекались лучшие городошники России. Игра была столь популярна, что на время состязания даже приостанавливались торги, поскольку и продавцы, и покупатели теснились на центральной площади ярмарки, чтобы не пропустить любимую забаву. В годы Отечественной войны 1812 года в Париже был издан двухтомный альбом под названием «Народы России». В нём представлена галерея прекрасных гравюр, охватывающих практически все стороны жизни русского (и не только) народа. Автором рисунков стал русский художник Емельян Михайлович Корнеев (1780-1839). Альбом пользовался огромной популярностью во Франции и во всей Европе.
Гравюра Е. М. Корнеева «Игра в городки», 1812. Фото: Современный музей спорта (4)
В XIX веке игра в городки из крестьянской (и рекрутской) среды, где играли на грунте, перекочевала в города. Площадки для игры постепенно приобрели современную квадратную форму и для игры стали отводиться специальные места — городошные площадки. Городошные площадки и первые частные клубы организовывались как в усадьбах высшего сословия, так и во дворцах правящей династии Романовых. Однако основную массу играющих в городах составляли рабочие, в деревнях — крестьяне. (5)
Россия. Лето. Воскресный день в деревне. Игра в городки. Издание до 1918 г. (5)
(6)
В городки играли многие известные личности: император Николай II и генералиссимус Александр Суворов, классики мировой литературы Максим Горький и Лев Толстой, музыкальный критик и композитор Владимир Стасов и певец Фёдор Шаляпин, нобелевский лауреат академик Иван Павлов, генетик Николай Тимофеев-Ресовский. Советские руководители тоже с удовольствием играли в городки — Владимир Ленин, Иосиф Сталин, Михаил Калинин и Климент Ворошилов.
Толстой играет в городки у себя в Ясной Поляне, 1909 г. (7)
Русский певец Федор Иванович Шаляпин во время игры в городки. 1914 год. Репродукция. (8)
Революция в 1917 году сильно повлияла на развитие спорта в России, в том числе и на городки. Советская Россия отказалась участвовать в международных Олимпийских играх и закрыла свой Олимпийский комитет (с 1911 по 1917 год). Они считали «буржуазными» виды спорта и запретили их. Вместо этого городки объявили «оружием пролетариата» — то есть как важную часть рабочего класса. Руководителям Советской России очень нужно было установить связь с рабочими и крестьянами. Первые известные люди в этом виде спорта были В. И. Ленин, а позже — И. В. Сталин.
Институционализация (СССР)
Как вид спорта, имеющий единые правила, городки сформировались к 1923 году, когда в Москве были проведены первые всесоюзные соревнования. В 1928 году городки были включены в программу Всесоюзной спартакиады. (6)
Этапы развития городошного спорта (9)
Популярность городошного спорта нашла отражение в искусстве.
Матвей Генрихович Манизер. Скульптура «Играющий в городки», 1927 (10)
А. Ф. Пахомов (1900-1973). Городки. 1927 г. Бумага, акварель. 20×18,3 см. (11)
В 1931 году Александром Исааковичем Русаковым была написана картина «Игра в рюхи». К сожалению, репродукцию картины найти не удалось — только фото на странице ВКонтакте: на выставке в Русском музее президент Федерации городошного спорта Санкт-Петербурга Евгений Артамонов увидел картину, посвящённую игре в городки.
Игра в рюхи. 1934. Холст, масло. (12)
Книга «Игры народов СССР» (1933) под редакцией В. Всеволодского-Гернгросса — один из первых фундаментальных трудов, систематизировавших традиционные формы досуга и физической активности народов страны. Исследование велось на стыке этнографии, культурологии и физического воспитания. Оно зафиксировало не только описания игр, но и их социальные, ритуальные и символические функции в народной жизни. Для игры «городки» этот труд — главный источник, позволяющий увидеть её не как простое метание деревянных палок, а как культурно укоренённую практику, связанную с традицией, трудом и образом жизни. По его наблюдениям, городки имели распространение по всей европейской части России, а также среди финно-угорских и славянских народов. Считалось, что они происходят от старинных игр с метанием дубинок или камней в цель — обрядов, связанных с ловкостью и меткостью как проявлением силы мужчины-охотника.
Игра в городки, по Гернгроссу, выполняла несколько функций: 1. Физическую — тренировала глазомер, точность броска, силу рук и координацию. 2. Социальную — объединяла соседей, сельскую или дворовую молодёжь, служила пространством общения и инициации. 3. Культурно-семантическую — сохраняла символику борьбы человека с препятствием, с «городом» как образом сопротивления или цели.
Автор отмечал универсальность принципа: почти у всех народов СССР существовали игры, где нужно было выбить предметы из ограниченного пространства (у татар — «таш куу», у чувашей — «урлă кăвак»). Это показывает, что городки — не уникальный, а типологический феномен, коренящийся в древней потребности человека метать, попадать, разрушать и соревноваться в точности. В этнографических описаниях городки часто упоминаются как праздничная или воскресная забава. Игра устраивалась на ровной площадке, а право первого броска принадлежало старшему или уважаемому игроку. Эта деталь подчёркивает, что игра обладала иерархией и внутренней этикой, напоминая миниатюрную модель общества. Всеволодский-Гернгросс писал, что такие игры формировали народную дисциплину, коллективное чувство ритма и уважение к правилам. Через повторяющиеся ритуалы (разметка площадки, выстраивание фигур, счёт очков) закреплялся порядок совместного действия — то, что сегодня можно назвать «социальной координацией». В начале 1930-х годов для соревнований в городки правила были унифицированы. Были выбраны 15 фигур из более чем 220 известных. С 1936 года проводятся чемпионаты России. В 50–70-е годы прошлого столетия городошным спортом в СССР занимались сотни тысяч человек. Городки стали третьим по массовости спортом в стране после футбола и хоккея. Появились целые династии мастеров городошного спорта, а также были созданы сильные клубы. Особенно известными в то время были команды «Спартак», «ЗиЛ», «Серп и молот».
Игра в городки, Москва, 1935 год. (13)
В 40-е годы можно было купить настольную игру в городки.
Настольная игра для детей «Веселые городки», СССР, Москва, издательство «КОИЗ», производство фабрики «Труд и творчество», 1940-е годы, автор М. П. Куликов, художник В. Р. Сутеев. (14)
На игру рисовали карикатуры.
Фотоархив СССР, на фотографии: Карикатура на игру в городки, год 1957 (15)
По официальной статистике, в 1960–70-е годы городками в Советском Союзе занимались около 350 000 человек.
Соревнования в городки. (16)
В популярном мультфильме «Ну, погоди!» бегемот-городошник играет на стадионе в городки: строит городок и разбивает его битой-палкой. Волк же мешает сделать ему очередной бросок. Этот выпуск знаменитого мультсериала снимали в 1971 году — в самый разгар славы городков, когда в них играли почти на каждом шагу — как во дворах, так и на стадионах.
Бегемот-городошник из «Ну, погоди!». (17)
В 1971 году известным советским художником Ярославом Титовым (1914–1988 гг.). написана картина «Городки — игра русская»
Городки — игра русская. 1971 г., Картон, масло. 50×33. (18)
В 1984 году вышел в прокат художественный телефильм Марка Захарова по сценарию Григория Горина «Формула любви», в котором есть сцена обучения слуг графа Калиостро игре в городки крестьянкой Фимкой.
кадр из фильма (Формула любви), 1984 г. (19)
Правила и техника игры
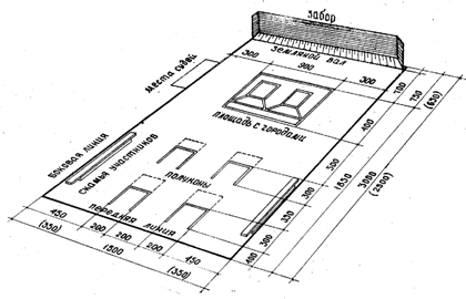
Суть игры — бросками бит (палок) выбить из т. н. города (отсюда и название) поочередно определённое количество фигур, составленных из 5 т. н. городков — цилиндрических деревянных столбиков (из берёзы, липы, бука, дуба и т. д.) примерно 15 см и диаметром 3-4 см (по другим данным, длина городков составляет 20 см, диаметр — 4,5−5 см). Длина биты составляет около 7,5 м, вес — 0,5-1 кг (по другим данным, длина биты должна составлять не более 1 метра), каждый игрок бросает по две биты. Главная задача — затратить на выбивание 15 фигур как можно меньше бросков. Победителем считается тот, кто по итогам трёх турниров использовал меньше всего попыток. (6)
Схема площадки для игры. (20)
Городки — игра, в которой нужно сбить из деревянных фигур палками (битами). Фигуры состоят из 5 маленьких деревянных столбиков, называемых городками. Размер городков примерно 15-20 см в длину и 3-5 см в диаметре. Цель игры: Захватить или сбить все эти фигуры с помощью бросков палками, потратив при этом как можно меньше попыток. В конце выигрывает тот, кто за три игры использовал меньше всего бросков. Как играют: Игра ведется на двух равных площадках, по одной для каждого игрока. Каждая площадка — прямоугольник 2×2 метра с линиями. На площадке есть «город» — центр, где стоят фигуры, и «пригород» — зона перед ним. Расстояние от «города» до места броска — примерно 8-13 метров, в зависимости от возраста участников. Взяты две длинные палки (биты) длиной около 1 метра и весом 0,5-1 кг. Что нужно делать: В начале каждого тура сначала сбивают фигуры с «коном» (самого дальнего места). Если при этом сбиты хотя бы один или несколько городков (маленьких деревянных столбиков), то оставшиеся сбивают с «полукона» — ближе. Есть особая фигура «письмо», которая сбивается только с «коном». Правила броска: Бросить палку можно, стоя чуть позади линий. Бросок недопустим, если: палка касается линии или земли перед ней, игрок заступает за линию, игрок заступает за боковую сторону, бросает более 30 секунд. Если нарушение — фигуры остаются на месте, бросок повторять нельзя. Порядок игры: Всего игра состоит из 15 фигур, которые берутся по порядку. Городок считается сбитым, если он полностью упал и вышел за границы. В «письме» сбитая фигура считается только если не задела другие фигурки. Дополнительные правила: В каждом туре сначала сбивают фигуры с кона (дальняя), а если есть городки — потом с полукона (ближе). Игра ведется на ровной площадке, разметка делается заранее. Итоговая победа — у того, кто потратил меньше попыток за три игры.
Фигуры городков


Колодец (21); Пулемётное гнездо (баба в окошке) (22)


Пушка (23); Самолет (24)


Тир (25); Звезда (26)
Состязания в городки — Это соревнование, которое может проходить между двумя игроками или двумя командами (обычно по две).
Игра всегда начинает команда, которая стоит справа от поля. Первый игрок этой команды бросает две палки, пытаясь сбить фигуры. Потом очередь переходит к игроку с левого поля, который тоже бросает две палки. После завершения одной партии выигрывает команда, которая побеждает в двух из трёх партий. Если счёт равный, играют третий, решающий поединок, с коротким перерывом между ним и вторым. В крупных турнирах обычно играют из пяти партий, и выигрывает команда, которая победила больше раз. Побеждает команда, которая затратила меньше бросков (бит) на сбивание фигур. Можно играть один на один или команда на команду. В команде должно быть минимум 4 или 5 игроков. В команде может быть запасной игрок. Когда команда завершает свои броски (каждый по две), начинают броски другой команды, и так далее. Игра состоит из двух или трёх партий. После каждого набора фигур команды меняются местами.
Снижение популярности и возрождение (1990-е — по настоящее время)
Популярность городков стала падать в 1980-1990-хх годах. После распада Советского Союза количество занимающихся резко сократилось. Во второй половине 1990-х годов городошные площадки ликвидировались повсеместно: исчезли городошные площадки в Лужниках, на стадионе «Динамо» в Москве, на стадионах «Турбостроитель», «Арсенал», «Большевик» в Санкт-Петербурге. В 1993 года была создана Федерация городошного спорта России (ФГСР), начали образовываться региональные федерации. В том же году в Санкт-Петербурге была создана и Международная федерация городошного спорта (IFGS).


Эмблемы ФГСР (27) и IFGS (28)
С начала XXI века интерес к городкам как виду спорта снова стал повышаться. В 2001 году в Петербурге состоялся первый чемпионат мира по городошному спорту. В турнире участвовали спортсмены из России, Украины, Белоруссии, Эстонии, Молдавии, Киргизии и Казахстана. Первым победителем в командном турнире стала первая сборная России. (5)
С этого года чемпионаты мира по городошному спорту проходят регулярно 1 раз в 2-3 года, как отдельные спортивные соревнования. С 19 по 27 сентября 2025 года в городе Подольске прошли Международные соревнования по городошному спорту, посвящённые 80-летию Победы в Великой Отечественной войне. В соревнованиях участвовало 47 спортсменов из 7 стран. Сборная команда России по городошному спорту заняла первое место в общекомандном медальном зачёте.
Международные соревнования по городошному спорту, посвящённые 80-летию Победы в Великой Отечественной войне (29)
Социальная роль игры в городки
Игра «городки» — не просто состязание в меткости. Это форма социального взаимодействия, где каждый бросок подчинён внутреннему закону игры и внешней культуре сообщества. Через игру человек учится следовать правилам, координировать тело и действовать вместе с другими в рамках понятного, но символического мира.
Анализ по Л. С. Выготскому: Лев Семёнович Выготский — советский психолог, основатель культурно-исторической теории в психологии. В своей работе «Игра и ее роль в психическом развитии ребенка», Л. Выготский назвал игру «ведущей деятельностью детства» и ключом к развитию произвольности поведения, воображения и способности подчиняться правилам. По его мнению, в игре ребёнок «научается действовать не по импульсу, а по смыслу». Применительно к городкам, этот тезис виден особенно чётко: игрок должен сдерживать силу броска, чтобы соблюсти правила — формируется саморегуляция; дети и взрослые вместе следят за очередностью и честностью — развивается социальная координация; освоение фигур («пушка», «письмо», «часовня») требует запоминания форм и последовательности — тренируется оперативная память и внимание; проигрыш не разрушает, а укрепляет группу — возникает эмоциональная устойчивость и чувство сопричастности. Таким образом, игра становится пространством, где человек «проживает» социальные законы не через нравоучение, а через движение и общение.
Анализ по Й. Хёйзинге: Нидерландский философ, историк, исследователь культуры Йохан Хёйзинга написал трактат «Homo ludens. Человек играющий», опубликованный в 1938 году. Автор видел в игре основу культуры: «игра старше культуры, ибо культура всегда несёт в себе игровой элемент». В его понимании каждая игра создаёт временный автономный мир, где действуют свои законы, символы и ритуалы. В этом смысле городки можно рассматривать, как микромодель общества: поле размечено как упорядоченный мир (город, пригород, усы), правила создают внутренний порядок — игровую конституцию, участники становятся «гражданами» этого мира, действуя в рамках условностей, ритуалы броска, комментарии и повторяющиеся движения формируют игровую традицию, которая передаётся через поколения. Когда во дворе ставят квадрат и берут биту, они создают пространство, где каждый временно выходит из повседневности и включается в культурную игру. Это не просто спорт, а память тела и сообщества. Вывод Й. Хейзинга: «без поддержания определённого игрового поведения культура вообще невозможна»
Выводы и рекомендации по сохранению традиции
Городошный спорт, несомненно, относится к концепции национальной идеи — прежде всего в бережном отношении народа к своей истории, культуре, традициям, ко всему тому, что его объединяет. Возрождение городошного спорта — дело, необходимое для общества, а потому — благородное. Городки позволяют поддерживать себя в прекрасной форме, тренируют координацию и глазомер, развивают выдержку, решительность, психологическую устойчивость, учат быстро анализировать и просчитывать игровые варианты и комбинации. В конце двадцатого века игра почти исчезла из городов. Асфальт поглотил дворы, а дети ушли к приставкам. Но традиция живёт: есть спортивные клубы, фестивали, и в некоторых дворах всё еще стоят кривые деревянные биты, как хранители лета 1985 года. С 2001 года чемпионаты мира по городошному спорту проходят регулярно 1 раз в 2-3 года, как отдельные спортивные соревнования. В сентябре 2025 года Приказом Министерства спорта Российской Федерации от 17 сентября 2025 года № 735 утверждена Программа развития вида спорта «городошный спорт» в Российской Федерации.
«Городошный спорт — это не только спорт, но и форма активного отдыха, одна из самых приятных, интересных и оздоровительных видов физической нагрузки. Им могут заниматься люди разных возрастов, с различной физической подготовкой и спортивной квалификацией, в том числе и люди с ограниченными физическими возможностями» — написано на сайте Федерации городошного спорта России. (5)
Городки — это часть культурного кода. Игра, где ценится точность, спокойствие и хитрая геометрия. Она шагала из века в век, от деревенского луга до советских стадионов. И пусть сегодня её знают меньше, в памяти она остается как запах свежего дерева, тёплый пыльный двор и звук удара, когда биту встречает дерево. Через игру человек не просто метает биту — он вступает в диалог с традицией, воспроизводит культурные жесты предков и продолжает живое тело народной культуры.
Всеволодский-Гернгросс В. Н. (сост.) Игры народов СССР. — М.: Издательство Академии наук СССР, 1933. — 312 с.
Выготский Л. С. Игра и её роль в психическом развитии ребёнка. // Вопросы психологии. — 1966. — № 6. — С. 62–76.
Хёйзинга Й. Homo Ludens. Человек играющий. — СПб.: Издательство Ивана Лимбаха, 2011. — 350 с.
Юнгер Ф. Г. Игры. Ключ к их значению. — СПб.: Владимир Даль, 2012. — 240 с.
Федерация городошного спорта России. [Электронный ресурс]. — Режим доступа: https://www.gorodki-russia.ru (дата обращения: 06.11.2025).
Википедия. Городки. [Электронный ресурс]. — Режим доступа: https://ru.wikipedia.org/wiki/Городки (дата обращения: 06.11.2025)
Методическая разработка по теме «Игра городки». [Электронный ресурс]. — Режим доступа: https://videouroki.net/razrabotki/mietodichieskaia-razrabotka-31.html (дата обращения: 06.11.2025).
Инфографика «Городки». [Электронный ресурс]. — Режим доступа: https://sovainfo.ru/upload/resize_cache/webp/images/Sayt_infografika_gorodki-01.webp (дата обращения: 06.11.2025).
Гравюра Аткинсона, 1803 г. https://gorodki-russia.ru/ckfinder/userfiles/images/atk%201.jpg
Гравюра Х.-Г. Гейслера. 1805: начало игры в городки https://gorodki-russia.ru/ckfinder/userfiles/images/geisler%20new%201.jpg
Гравюра Х.-Г. Гейслера. 1805: окончание игры в городки https://gorodki-russia.ru/ckfinder/userfiles/images/geisler%20%20new%202.jpg
Гравюра Е. М. Корнеева «Игра в городки», 1812. Фото: Современный музей спорта https://russkiymir.ru/upload/medialibrary/ef6/ef61635af12f476689fba685c2df9e2c.jpg
Россия. Лето. Воскресный день в деревне. Игра в городки. Издание до 1918 г. https://upload.wikimedia.org/wikipedia/commons/d/d7/Gorodki.jpg?20170719062515
Пермский губернский клуб городошников. Нач. 20 в. https://gorodki-russia.ru/ckfinder/userfiles/images/5_ИЗО_%20Пензенский%20губернский%20клуб%20городошников%20Нач%20ХХ%20в.jpg
Толстой играет в городки у себя в Ясной Поляне, 1909 г. https://upload.wikimedia.org/wikipedia/commons/3/38/Толстой_играет_в_городки.png
Русский певец Федор Иванович Шаляпин во время игры в городки. 1914 год. Репродукция. https://upload.wikimedia.org/wikipedia/commons/7/79/Шаляпин_во_время_игры_в_городки.jpg
Этапы развития городошного спорта https://sovainfo.ru/upload/resize_cache/webp/images/Sayt_infografika_gorodki-01.webp
Матвей Генрихович Манизер. Скульптура «Играющий в городки», 1927 https://cdn.ruwiki.ru/commonswiki/files/e/e1/7649145.jpeg
А. Ф. Пахомов (1900-1973). Городки. 1927 г. Бумага, акварель. 20×18,3 см. https://img0.liveinternet.ru/images/attach/d/4/160/62/160062798_1927_Gorodki_bumakv_20h183.jpg
Игра в рюхи. 1934. Холст, масло. https://sun9-58.userapi.com/s/v1/ig1/aTRe1Cr-XzDHpDvx-Xrs8_P_wTgbCi_sNFHxtiQlk36d_lVSp4HxrdN-_zcConPMgWNElbnE.jpg?quality=96&as=32x43,48x64,72x96,108x144,160x213,240x320,360x480,480x640,540x720,640x853,720x960,1080x1440,1280x1707,1440x1920,1536x2048&from=bu&cs=1536x0
Игра в городки, Москва, 1935 год. https://upload.wikimedia.org/wikipedia/commons/thumb/2/27/Gorodkispillere_%281935%29.jpg/1200px-Gorodkispillere_%281935%29.jpg?20131117074256
Настольная игра для детей «Веселые городки», СССР, Москва, издательство «КОИЗ», производство фабрики «Труд и творчество», 1940-е годы, автор М. П. Куликов, художник В. Р. Сутеев, картон, дерево, пластмасса. https://www.dvaveka.ru/wa-data/public/shop/products/64/04/10464/images/68676/68676.1000x0.JPG
Фотоархив СССР, на фотографии: Карикатура на игру в городки, год 1957 https://avatars.mds.yandex.net/i?id=b2fad1ea15d17e4890cff9738be08e92_l-5344552-images-thumbs&n=13
Участники соревнований https://gorodki-russia.ru/ckfinder/userfiles/images/10_ИЗО.jpg
Бегемот-городошник. Ну, погоди! https://static.wikia.nocookie.net/nu-pogodi/images/0/09/Бегемот-городошник.jpg/revision/latest/scale-to-width-down/1200? cb=20200503131621& path-prefix=ru
Городки — игра русская. 1971 г., Картон, масло. 50×33. https://gorodki-russia.ru/ckfinder/userfiles/images/00000_СССР_ПЛАКАТ_Городки%20-%20русская%20игра, %201971г_%20Художник%20Титов%20Я_В_%20(1914–1988гг_).jpg
Кадр из фильма «Формула любви» https://avatars.mds.yandex.net/i?id=fbebbc53a878f955bea14ebc6c282a9f_l-9211418-images-thumbs&n=13
Схема площадки https://pandia.org/text/77/156/images/image012_8.gif
Пулемётное гнездо (баба в окошке) https://upload.wikimedia.org/wikipedia/commons/thumb/1/15/Gorodki-pulemet.jpg/1280px-Gorodki-pulemet.jpg
Тир https://upload.wikimedia.org/wikipedia/commons/thumb/f/f9/Gorodki-tir.jpg/1280px-Gorodki-tir.jpg
Символика «Федерация городошного спорта России» https://avatars.mds.yandex.net/i?id=26f890236a1dc88d8ca33aef1f26b8da6f6e4325-4135778-images-thumbs&n=13
Эмблема Международной федерация городошного спорта https://igsf.pro/
Международные соревнования по городошному спорту, посвящённые 80-летию Победы в Великой Отечественной войне https://gorodki-russia.ru/ckfinder/userfiles/images/Сергей%20Кузнецов.jpg