


The site is located in the Repino resort area of St. Petersburg. Two-storey house with a total area of 825 m² is positioned on a picturesque lot of 0.2 hectares with a minimum slope. The architectural style is minimalistic, yet not ascetic. The concept is based on laconic forms, strict silhouette and clear zoning. The project was inspired by the work of Ludwig Mies van der Rohe, a leading figure of modernist architect generation of the 20th century. At the heart of his «less is more» philosophy lies the clarity and comprehensibility of the design. Architectural simplicity is expressed in the ephemerality of the structure, free planning and homogeneity of façade materials.




The architectural image is formed by two volumes, light and dark one, almost like Yin and Yang, symbolizing the duality of everything mundane. From the side of the roadway, the facade is made with minimal glazing, and the side surfaces completely exclude visibility from the neighboring plots. The facade facing the inner garden, on the contrary, has distinguishing panoramic glazing.
The austerity of the architecture is emphasized by the timeless combination of white architectural concrete, rough cross-bar brick, burnt wood and metal (lcheck out the facade images of the second floor).




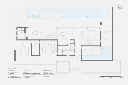
On the lower level there are coomon premises — a large living room and a kitchen-dining room, as well as a spacious office with a meeting area. The living room on one side is connected to an outdoor pool and a lounge area with a kitchen, and on the other it faces a private terrace with a real fireplace overlooking the inner garden. At the same time, the office is isolated from the common area, with a peaceful view of the garden. On the second floor there is a master block, 2 children’s bedrooms and guest rooms. Each bedroom has access to a terrace. The landscape design of the local area is not overloaded with details, geoplastics and complex structures: open lawn was left in front of the house for picnics, walks and sports events.
A picturesque spring flows on the property ground.







