
Таунхаус для семьи коллекционеров — это дом, в котором хозяева смогут подчеркнуть свой нестандартный вкус, а также почувствовать себя в атмосфере тепла уюта даже в самую суровую зиму.
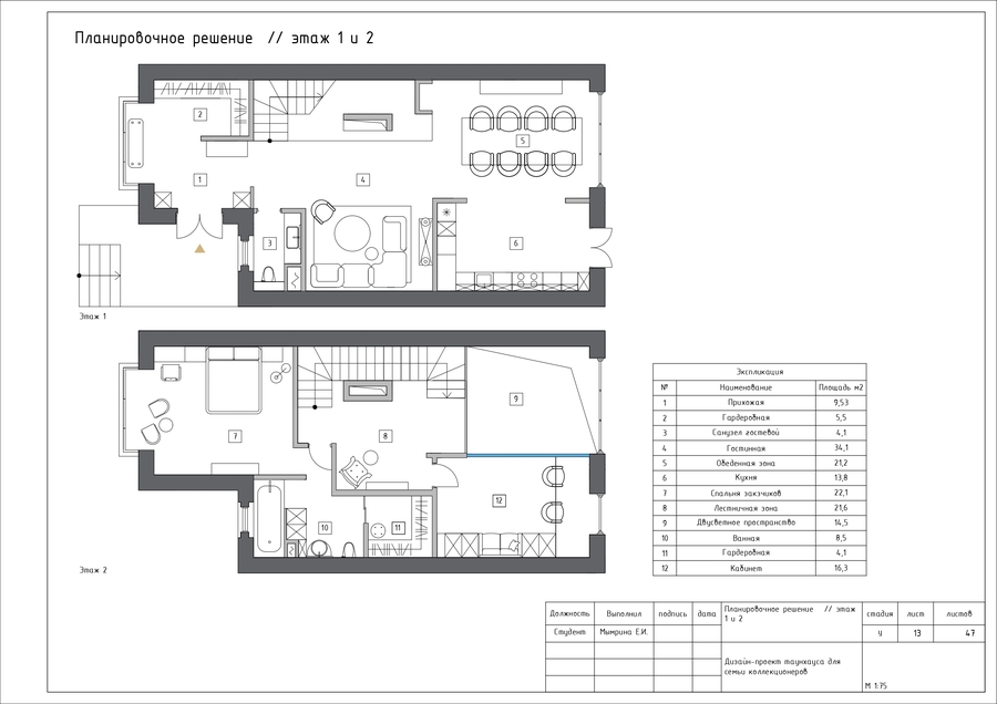
Таунхаус рассчитан на трех человек, но при этом содержит в себе открытую столовую для приема гостей с панорамным видом на горы и гостиную зону с камином.

Ванная при мастер-спальне

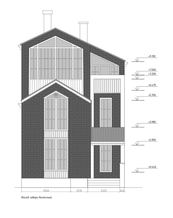
Таунхаус Фасад

Таунхаус Интерьер
Ссылка на альбом чертежей