GEEK BRAINS — Российская компания в сфере онлайн-образования, основанная в 2010 году.
Образовательная платформа GeekBrains предлагает курсы по информационным технологиям, программированию, аналитике, тестированию, маркетингу, управлению и дизайну. С 2016 года входит в состав VK. В 2021 году вошла в пятёрку ведущих российских компаний онлайн-образования.
Логотип компании компании разрабатывался достаточно долго и имел множество версий. Итоговый логотип выполнен в виде мозга с извилинами и символизирует интеллектуальную деятельность и активность.
Платформа имеет 123 курса для взрослых и 15 курсов для детей и подростков. На данный момент в компании обучаются около 7 тысяч студентов. Целевой аудиторией являются люди, желающий открыть для себя новую сферу.


Функциональное зонирование

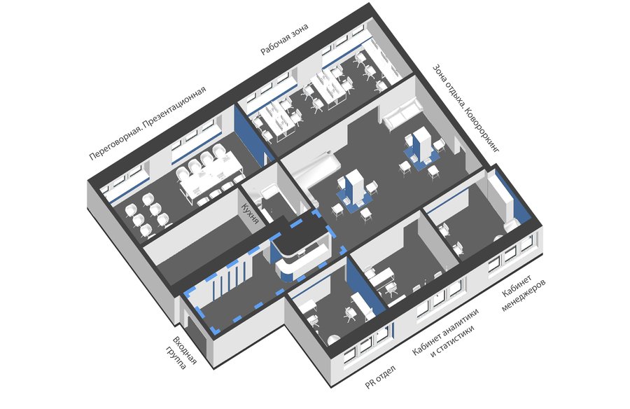
Функциональное зонирование. Аксонометрия
Основные цвета: белый, серый, чёрный и фирменный синий
Основные материалы: бетонные белые и светло-серые стены, кирпичные белые стены, полированная серая плитка. Дизайн помещения выдержанный, в серо-белых тонах. В качестве акцентного цвета используется фирменный синий цвет и тёмно-серый алюминий. Используется рассеянное освещения для лучшей концентрации. Также используются элементы логотипа в декорировании стен и навигации
Входная группа. Ресепшн
Рабочая зона
Зона отдыха. Коворкинг
Переговорная. Презентационная
Административная зона. Кабинет менеджеров
Административная зона. Кабинет PR-отдела
Светорасчёт офиса
Светорасчёт. Рабочая зона. Переговорная и презентационная
Светорасчёт. Зона отдыха. Ковркинг
Светорасчёт. Административные зоны




