
Терем — ТЕРЕМОраК
Мода на русское — это новый современный тренд. Наша культура богата сокровищами искусства и зодчества. Вдохнуть новую жизнь в элементы архитектуры и быта русского терема, пересмотреть традиционные формы и внести в интерьер народные смыслы — все это удалось в проекте выставочного стенда.
Резной фасад сразу создает атмосферу уюта. Это точно что-то родное, настоящее, из детства. Русская печь зазвучала современно и смело в обтекаемой форме с подсветкой. Стойка ресепшн с секретом: в плане она имеет форму силуэта матрешки. Резные колонны придают сказочности не только своим видом: они вращаются, как в музыкальной шкатулке. Здесь даже есть березы!
Цветовая гамма стенда монохромна, она представлена десятью оттенками от белого до почти черного. Подсознание раскрашивает все, что видит. Теремок для каждого останется ярким.
Резные фасады со струнной подсветкой и современной крышей в стиле барн
Давайте прогуляемся
VR тур по ссылке: https://disk.yandex.ru/i/Wx5k3FpJPi4hsg
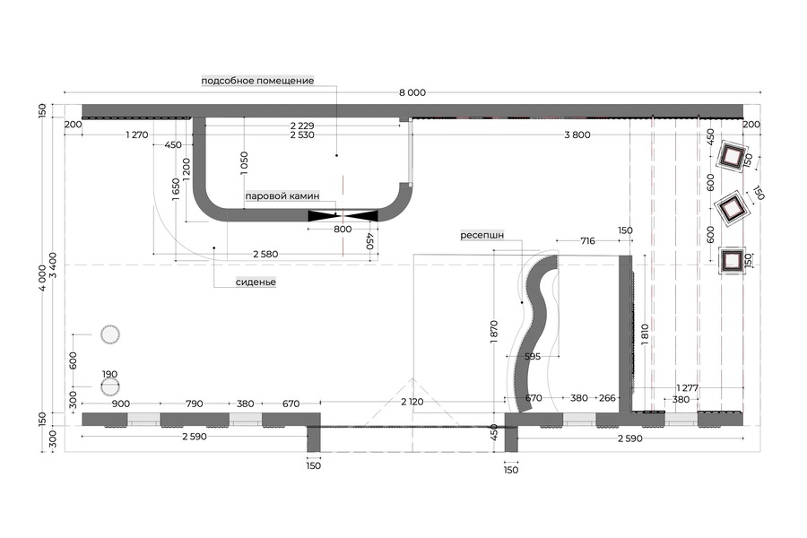
План стенда (найди матрешку)

Внутри растут березы
Раскрой стенда
Комплект чертежей по ссылке: https://disk.yandex.ru/i/Wx5k3FpJPi4hsg